Veröffentlichung in der Österreichischen Zeitschrift für Verkehrswissenschaft ÖZV 1/2022
1. Grundlagen
Technische Innovationen sind vor allem eine Frage der äußeren Notwendigkeiten. Dass Österreich im 20. Jahrhundert zum internationalen Vorreiter in alpiner Ingenieurbaukunst wurde, mag vor allem mit den geographischen und geologischen Gegebenheiten, andererseits aber auch mit den geopolitischen Zusammenhängen nach Ende des Ersten Weltkrieges zusammen hängen.
Durch die Zerstückelung Österreichs kamen der jungen Republik die Verkehrswege abhanden. Der Wegfall Südtirols regte Überlegungen zu neuen Hochgebirgsstraßen an, weil damit die direkte Verbindung zwischen Osttirol und Nordtirol nicht mehr vorhanden war.
Ohne den Zugang zu den abhanden gekommenen Regionen Böhmen und Schlesien fehlte allerdings auch der Zugang zur Kohle. Die Nutzung der Wasserkraft und die folgende Elektrifizierung der Bahn waren folglich ein Gebot der Stunde. Es kommt nicht von ungefähr, dass sich die österreichischen Ingenieure zu Beginn des 20. Jahrhunderts intensiv mit dem Bau von Hochgebirgsstraßen sowie mit dem Bau von Wasserkraftwerken befassten. Manchmal auch mit beiden gleichzeitig, wie der Bau der Großglocknerstraße zeigt.
Hinzu kommen weitere Gegebenheiten jener Zeit. Das wirtschaftlich prekäre Österreich suchte Wege aus der Krise. Der aufkommende Fremdenverkehr sollte solche Perspektiven bieten, der mit der Heranbildung der bürgerlichen Gesellschaft im 19. Jahrhundert zusammen hängt. Der ländliche Raum wurde durch das Konzept der „Sommerfrische“, aber auch durch den aufstrebenden Wintertourismus zunehmend zur „Projektion bürgerlicher Kulturbeobachtung“[2] und folglich ein „ästhetisierter Raum, in dem sich „wilde“ Natur mit modernem Komfort treffen sollten.
Mit dem Automobil standen zu Beginn des 20. Jahrhunderts ebenso neue Anforderungen an das Verkehrssystem im Raum. Mit Eisenbahnlinien war dem individualisierten Mobilitätsbedürfnis jener Zeit längst nicht mehr Einhalt zu gebieten.
Eine Straße über den Großglockner in den Fels zu bauen, welche der verkehrstechnischen Erfordernis einer mehr oder weniger ganzjährigen Befahrbarkeit sowie den Anforderungen und Belastungen des Kraftfahrzeugverkehrs mit der entsprechenden Fahrdynamik gerecht wird, stellte die Planer vor eine Vielzahl an Herausforderungen.
Man mag rückblickend beurteilen: Je schwieriger die Herausforderungen und Konflikte, umso weitreichender die technischen Errungenschaften. Die Zähigkeit, mit welcher die verschiedenen technischen Varianten für die Großglocknerstraße unter dem Aspekt der wirtschaftlichen Nöte debattiert wurden, bewirkten technische Lösungen, die Meisterleistungen darstellten und in den Fachbüchern Verbreitung fanden.
2. Trassierung
Ursprünglich verlief die Straßenverbindung zwischen Kärnten und Osttirol über Südtirol. Durch die Abtrennung Südtirols 1920 gab es zwischen Brennerpass und Tauernpass keine direkte Straße über die Alpenhauptkette mehr, wobei die beiden Verbindungen rund 156 Kilometer entfernt waren[3]. Dies sollte – den Überlegungen jener Zeit zufolge – dringend geändert werden.
Bereits 1922 sollte der Bau der Großglocknerstraße debattiert werden. Aufgrund der prekären Situation Österreichs erschien selbst eine 3 Meter breite Schotterstraße als undenkbar. Ab 1922 wurde trotzdem die technische Realisierbarkeit auf politischer Ebene diskutiert.
Konkurrieren musste die Großglocknerstraße in den Debatten jener Zeit mit der Felbertauernstraße, die ebenso vorangetrieben wurde. Allerdings stellte Franz Wallack, der Planer der Großglocknerstraße, rückblickend fest, dass – aufgrund der Entfernung im Vergleich zum Reschenpass und zum Brennerpass – beide Projekte verwirklicht hätten werden müssen[4], wobei nach Wallack die „Naturschönheiten“ den Ausschlag zugunsten der Glocknerstraße gaben.

Abbildung 2: Alpenpässe und ihre Distanzen[5]
Mit dem Bau der Felberntauernstraße wurde folglich erst 1962 begonnen.
Franz Wallack, der als Erbauer der Großglocknerstraße berühmt geworden ist, wuchs in Wien auf, seine Familie stammte aus Weimar. Im Jahre 1912 schloss Wallack sein Studium an der Technischen Hochschule Wien ab, kämpfte im Ersten Weltkrieg in Italien, war im Kärntner Abwehrkampf beteiligt und ab 1918 in der Kärntner Landesverwaltung tätig.
Im Jänner 1924 beschloss die Salzburger Landesregierung, Kontakte mit den Landesregierungen von Kärnten und Tirol aufzunehmen, um die Großglocknerstraße zu konkretisieren. Im Jahre 1924 wurde der „Ausschuss zur Erbauung einer Großglockner-Hochalpenstraße“ in Klagenfurt gegründet. In der Folge wurde Franz Wallack als leitender Techniker eingesetzt.
Wallack arbeitete zwei Monate am ersten Entwurf. Dieser konkretisierte sich durch zahlreiche Begehungen im Gelände.
Die Grundzüge der Projektaufgabe stellte Wallack wie folgt dar: „Die Anschlusspunkte des zu planenden Straßenzuges waren in groben Umrissen gegeben. Im Norden kam hierfür der Endpunkt des schmalen Sträßchens in Betracht, das vom Salzachtal in Bruck abzweigend, das Fuschertal aufwärts bis FerIeiten führte. Im Süden war ein möglichst hochgelegener Punkt der nur einbahnig ausgebauten Alpenvereinsstraße von Heiligenblut zum Glocknerhaus, die ihre Fortsetzung nach Süden in der ebenfalls sehr schmalen Molltaler Landesstraße fand, in Aussicht zu nehmen. Zwischen diesen beiden Anschlusspunkten war die Straße über das Fuschertor und Hochtor zu projektieren“[6].
Grundsätzlich ging Franz Wallack davon aus, dass Alpenpässe bis 1500 m Meereshöhe ganzjährig befahren werden können. Über diese Höhenkote hinaus eröffnete sich das Problem der Winterbefahrung, der Schneehöhen sowie notwendiger, kostspieliger Kunstbauten. Ebenso gab Wallack bei seinen verkehrswirtschaftlichen Überlegungen zu bedenken, dass sich Tunnel nur dann rechneten, wenn durch das Tunnelbauwerk eine mindestens zehnmal so lange offene Strecke erspart blieb.
Franz Wallack arbeitete folglich einen Straßenbauentwurf aus, welcher durch intensives Studium der geologischen und klimatischen Verhältnisse die Kosten minimieren sollte.
Im Jahre 1925 bereiste Wallack die wichtigsten Passstraßen Europas, um sich ein umfassendes Bild über den Stand der Technik im alpinen Straßenbau zu machen. Die Studie umfasste die Analyse der italienischen Straßen, wozu auch die Südtiroler Straßen gezählt wurden, die Schweizer Straßen, die Grenzstraßen Italien – Schweiz, die französischen Straßen, die Grenzstraßen Frankreich – Italien sowie die Grenzstraße Österreich-Italien, wozu einzig der Brenner gehörte. Insbesondere der italienische Alpenstraßenbau war damals beispielgebend.
Anlässlich seiner Studienreise stellte Wallack fest: „Der Verkehr über den Brenner, dieser wichtigen Nord-Süd-Linie, war damals – dem Straßenzustande entsprechend – als verheerend schwach zu bezeichnen“ und zählte 1.800 Personenkraftwagen, 240 Autobusse und 280 Motorräder pro Jahr. Demgegenüber waren es am Stilfserjoch 16.200 Personenkraftwagen, 840 Autobusse und 1.060 Motorräder. Alleine aus dieser Aufstellung lässt sich erahnen, welches Potential eine aufsehenerregende Alpenstraße entwickeln konnte.
Wallack sah die Großglocknerstraße den übrigen Alpenpässen gegenüber im Vorteil, wenngleich ihm unter anderem die Stilfserjochstraße Bangen bescherte, in der Befürchtung, „Ähnliches und landschaftlich Schöneres“ zu erblicken, und stellte in Bezug auf die Großglocknerstraße fest: „Österreich hatte allen Grund, die Möglichkeit der Herstellung eines solchen Überganges aller Welt kundzutun, denn das, was die projektierte Straße landschaftlich bot, zeigte von den bestehenden Alpenstraßen keine“.
Und weiter führt er aus: „Keine der bestehenden Alpenstraßen hatte eine Entwicklung zur Höhe, die sich landschaftlich auch nur annähernd mit jener im Ferleitental vergleichen ließ. Keine Straße hatte zwei Scheitelpunkte mit dazwischenliegender aussichtsreicher Höhenfahrt. Keine Straße führte bis an einen Punkt, von dem aus man den überwältigenden Blick auf ein Meer von Eis von ähnlicher Ausdehnung wie die Pasterze genoss. Viele Straßen führten an Gletscherabbrüchen vorbei, über den Gletscherabbruch hinauf jedoch keine“.
Wesentliches Ziel des Baus der Großglocknerstraße war der aufkommende Tourismus, mit dem sich Österreich einen wirtschaftlichen Aufschwung erhoffte. Der Vergleich mit anderen Alpenländern machte sichtbar, dass Österreich hinterher hinkte.
Franz Wallack stellte dabei fest: „Sowohl der Bau der Straße als auch der zu erwartende Verkehr mussten sich auf das Wirtschaftsleben in ganz Osterreich günstig auswirken. Das war ja schließlich der Hauptzweck, weshalb die Straße gebaut werden sollte. Die damals in Österreich vorhandenen Fremdenattraktionen waren nicht in der Lage, eine wesentliche Steigerung des Fremdenzustromes herbeizuführen. Es bedurfte eines kräftigen Impulses nach vorwärts, wollte man den gewaltigen Vorsprung, den die Schweiz in jahrzehntelanger Arbeit als Fremdenverkehrsland Osterreich voraushatte, auch nur einigermaßen verkleinern oder gar einholen. Eine große Sache musste geschaffen werden, die zwangsläufig auch weiterhin wieder bedeutende fremdenverkehrsfordernde Aufgaben auslöste. Und diese große Sache sollte die Großglockner Hochalpenstraße werden“.
Wallack rechnete mit Mauteinnahmen von 120.000 Fahrgasten in 15.570 Kraftwagen, 3.570 Autobussen und 1000 Motorrädern, was eine halbe Million Schilling generieren sollte
Dass die Großglocknerstraße tatsächlich gebaut werden sollte, wurde erst 1929 konkret. Damit zusammenhängend standen Kraftwerkspläne der Salzburger Landesregierung unter Landeshauptmann Franz Rehrl, wobei auch die Errichtung eines Skizentrums angedacht war. Rehrl beabsichtigte sogar, Kärnten gezielt aus dem Projekt auszuschließen.
Unterstützung fand das Anliegen Großglocknerstraße beim damaligen Finanzminister Otto Juch, wenngleich die Beamten im Finanzministerium dagegen waren. Gemeinsam mit der Kärntner Landesregierung wurde das Projekt vorangetrieben.
Das beabsichtigte Kraftwerk am Großglockner, welches es der Salzburger Landesregierung angetan hatte, sollte das Wasser in einem kilometerlangen Wassertunnel von Kärnten ins Bundesland Salzburg führen. Landeshauptmann Rehrl ging es im Rahmen des Projektes folglich wesentlich darum, die Planungen des Wasserkrafttunnels mit den Straßenbautunnels zu kombinieren und die geologischen Gegebenheiten für einen Kraftwerksbau zu beurteilen. Die Kosten der Straße wären dann durch die Allgemeine Elektrizitäts-Gesellschaft Berlin (AEG), die die Kraftwerkspläne verfolgte, zu tragen gewesen.
„Kommt es zur Errichtung des Tauernwerkes, dann muss die Straße von der A.E.G. Berlin gebaut werden. In diesem Falle ist die Großglockner-Hochalpenstraße allerdings nichts anderes als eine Werksstraße und bleibt auf die Dauer der Bauarbeiten am Tauernwerk für den öffentlichen Verkehr gesperrt“ legte der Salzburger Landeshauptmann fest.
Am 1. August 1930 wurde die „Großglockner-Hochalpenstraßen Aktiengesellschaft“ mit Sitz in Wien gegründet. Die Beteiligungen sahen wie folgt aus: Österreichischer Bundesschatz (6 Millionen Schilling), Proponentenkomitee der Tauernkraftwerke AG (3,3 Millionen Schilling), Bankhaus A. Lammer & Co, Zell am See, (110.000 Schilling), Land Salzburg (10.000 Schilling), Land Kärnten (10.000 Schilling), Land Salzburg und Kärnten als Repräsentanten des ehemaligen Glocknerstraßen-Ausschusses (20.000 Schilling), Baufirmen Redlich & Berger, Vianova, Spritzer A.G. und A. Porr (450.000 Schilling), Baufirmen Prokop, Lutz & Wallner und Arnoldi (100.000 Schilling).
Der Anteil des Proponentenkomitees der Tauernkraftwerke AG entstammte der AEG, wobei sich der Bund damals verpflichtete, diesen Anteil zu übernehmen, falls der Bau des Tauernkraftwerkes nicht bis Ende 1931 zugeteilt wurde.
Faktisch war das Großprojekt Tauernkraftwerk bald vom Tisch. Wasserkraftexperten wie Hermann Grengg beurteilten das Projekt als maßlos übertrieben. Die Wirtschaftskrise Anfang der 1930er-Jahre bescherte das endgültige Aus. Im Nationalsozialismus sollte das Projekt noch einmal ausgerollt und Hermann Grengg beauftragt werden, dieses wieder aufzunehmen. Schlussendlich minimierte Grengg das Projekt deutlich und es begann 1938 der Bau des Kraftwerks Kaprun.
Die Bauvergabe zur Großglocknerstraße erfolgte hingegen am 6. August 1930, Ende August 1930 begannen die ersten Sprengungen. Die Baustelle sollte Arbeit für bis zu 4.000 Bauarbeiter schaffen.
Ab 1930 war Wallack der Salzburger Landesverwaltung zugestellt[7]. Es begann ein hartes Ringen mit Landeshauptmann Rehrl um die effektive Trassierung der Großglocknerstraße. Dieses Ringen um die Varianten begleitete die Bauphase.
Der Entwurf Rehrls sah nur die Nord- und Südrampe aus dem Vorporjekt Wallacks vor, ansonsten allerdings eine völlig andere Scheitellinie. „Der Grundgedanke Projektes Rehrl bestand darin, den schönsten Aussichtspunkt, den die Straße berührte, für die aus dem Lande Salzburg kommenden Besucher auf einer möglichst kurzen Zufahrt erreichbar zu machen“ schreibt Wallack.
Während Wallack die Hochtorlinie vertrat (Variante I), arbeitete Rehrl an der Pfandelscharten-Linie (Variante II). Variante I entsprach im Wesentlichen dem ersten Entwurf Wallacks aus dem Jahr 1924.

Abbildung 3: Variante Wallack und Variante Rehrl[8]
Variante II sah den Klobengrat-Tunnel mit einer Länge von 562 m im endgültigen Entwurf im Scheitel den Pfandlschartentunnel mit einer – je nach Ausführungsart – Länge von 2.253 bis 2.077 Meter auf einer Meereshöhe von 2.272 Meter vor. Die Variante verlief vielfach an den Schattenhängen mit entsprechenden Problemen der Schneehöhen und der begrenzten jahreszeitlichen Befahrbarkeit. In der Folge wurde die Variante II mehrmals geändert, woraus die Varianten IIa und IIb resultieren (Abbildung 4).
Die Variante Wallack sah hingegen den Mittertörltunnel mit 117 m Länge auf einer Höhe von 2.373 m sowie den Hochtortunnel mit 302 m Länge auf einer Höhe von 2.504 m vor. Wesentlich bei der Beurteilung der Varianten ist, dass es Wallack nicht um anderweitige Interessen, sondern um das Straßenbauprojekt als solchem sowie um den Erlebnisfaktor ging.
Da die Großglockner Hochalpenstraßen A.G. sich allerdings nicht über die definitive Scheitelstrecke im Klaren war, bestand bis dato auf Seiten der Bundesregierung keine konkrete Veranlassung, sich mit der Finanzierung zu befassen.
Infolgedessen beauftragte Rehrl im August 1931 diverse Gutachter, was Wallack als Misstrauen ihm gegenüber wertete. Diese waren: Der Ingenieurgeologe Josef Stiny, der Tunnelbauingenieur und Rennfahrer Karl Imhof sowie den Alpinisten Oberst Georg Bilgeri, welchem die Beurteilung der alpinen Gefahren überantwortet wurde. Das Gutachten fiel aus Kostengründen für Variante I, der Variante Wallack, aus.
Im Februar 1932 wurde der Eisenbahn- und Tunnelbauingenieur Leopold Oerley beauftragt, die Scheitelstrecken zu beurteilen. Oerley bezog sich in seinen Untersuchungen auf die geologischen Studien Stinys. Das Gutachten fiel ebenso zu Gunsten der Variante I aus.
Schließlich wurde im Juli 1933 mit Beschluss der Bundesregierung der Variante Wallack der Vorzug gegeben und es wurden weitere Millionen bereitgestellt.
Wallack urteilt wie folgt über den zähen Variantenstreit: „Die Variantenfrage hatte aber auch ihre gute Seite. Noch bei keinem Hochgebirgsstraßenbau ist die Linienführung der Scheitelstrecke so unter die Lupe genommen worden, wie dies bei der Großglockner-Hochalpenstraße der Fall war. Als später im Jahre 1933 die Entscheidung zu Gunsten der Variante I fieI, stand wirklich eindeutig fest, dass man die beste und dabei auch am billigsten zu bauende Linie gewählt hatte“. Wallack traf es damit wohl auf den Punkt: So nervenaufreibend die Variantenstreitigkeiten auch gewesen sein mögen, wesentlich ist, dass diese die Grundlage für die technischen Meisterleistungen schufen.
Schlussendlich wurde die Großglocknerstraße wie folgt geplant und gebaut:
- Erstens in die Durchzugsstraße von Bruck im Salzburger Pinzgau nach Heiligenblut in Kärnten. Die Straße ist 47,8 Kilometer lang und hat 26 Kehren.
- Zweitens die Gletscherstraße. Die Gletscherstraße führt hingegen von Guttal in Kärnten zur Kaiser-Franz-Josefs-Höhe. Die Gletscherstraße ist 8,7 Kilometer lang und hat 5 Kehren.
- Schließlich die Edelweißstraße, die eigentlich nur deshalb gebaut wurde, weil Franz Wallack aus dem Auftrag ein Guthaben übrig hatte und darauf aus war, die Panoramastraße zu vollenden. Die Edelweißstraße führt vom Fuscher Törl zur Edelweißspitze. Die Straße ist nur 1,6 Kilometer lang mit sechs Kehren.
Im September 1934 überquerte Landeshauptmann Rehrl in einem umgebauten Steyr 100 als erster die unfertige Großglocknerstraße. Die feierliche Eröffnung erfolgte im August Die Baukosten waren letztlich niedriger als die veranschlagten Kosten.

Abbildung 4: Definitive Variantenübersicht[9]
3. Ingenieurgeologie
Franz Wallack stellt rückblickend fest, dass die Trassierung der Großglocknerstraße ein ingenieurtechnisches Vorhaben der Sonderklasse war:
„So werden nach eingehender Überprüfung der Bodengestaltung, der geologischen und klimatischen Verhältnisse die Grundzüge der Trassenführung festgelegt. Trotz allerbester Behelfe sind das aber doch nur Grundzüge, die erst in der Natur auf ihre Stichhaltigkeit überprüft werden müssen. Damit beginnen für den Ingenieur die Arbeiten im Gelände. Es ist eine alte Regel des Gebirgsstraßenbaues, dass der Bauentwurf nur dann entsprechen kann, wenn der Ingenieur das ganze Straßengebiet aus eigenem Augenschein kennt und durch Begehungen nach allen Richtungen durchforscht hat“.
Und weiter: „Wenn auch die wissenschaftlichen Vorarbeiten die Lösung der gestellten Aufgabe heute wesentlich erleichtern, so bleiben dem Ingenieur doch bei der Durchführung der Trassierung große körperliche Anstrengungen nicht erspart, die sich mit dem Wachsen der Entfernungen von besiedelten Gebieten und mit der Zunahme der absoluten Höhenlage des Arbeitsgebietes steigern. Bei der Erkundung im Gelände muss festgestellt werden, welche Hänge wegen Lehnenrutschgefahr zu vermeiden sind, wo sich die günstigsten Überschreitungsstellen von Wasserläufen, Seitengraben und Schluchten befinden, welche Platze sich am besten für die Anlage von Kehren eignen, welche Gebietsteile wegen Lawinen- oder Steinschlaggefahr zu meiden sind oder wie diesen Gefahren straßenbautechnisch begegnet werden kann, auf welche Weise Strecken, die langandauernde Schneebedeckung zeigen, umgangen werden können und dergleichen mehr“.
Eine Straße aus dem Nichts heraus durch die Natur zu bauen ist natürlich ein besonderes herausforderndes Unterfangen.
Professor Josef Stiny, der als Ingenieurgeologe ins Projekt gerufen wurde, um Variantenstudien zu beurteilen, hatte wesentlichen Anteil am Bau der Großglocknerstraße. Erst die systematische Untersuchung der geologischen Verhältnisse lieferte die Entscheidungsgrundlagen für die Varianten sowie für den effizienten Bau. Stinys Lebenswerk war es, eine technische Gesteinskunde zu entwickeln, welche die Grundlage für die Fels- und Tunnelbaumechanik bildete.
Stiny studierte Forstwirtschaft und Wildbachverbauung an der Hochschule für Bodenkultur in Wien sowie Bauingenieurwesen und Geologie in Graz, arbeitet zunächst in der Wildbachverbauung und begründete sodann das Fach der Ingenieurgeologie.
Stiny selbst befasste sich über Jahre hinweg mit dem Großglocknergebiet. Neben der Gutachtertätigkeit zum Straßenbau verfasste Stiny Aufsätze zur Landformenkunde des Glocknergebietes (1934) sowie zum Tauernkraftwerk Glockner-Kaprun (1951 und 1955).
Stiny war daran gelegen, bereits im Rahmen der ersten Trassierung „das Wesen des Gebirges und seiner Gefahren zu beurteilen“. Die Nordrampe am Großglockner wurde dabei als „Musterbeispiel“ gewertet[10]: „Sie überwindet den steilen und durch Felssturz und Lawinen gefährdeten Neubaustreifen mit Kehren so rasch als möglich und entwickelt sich erst auf den hochgelegenen Verebnungsflächen“.
In diesem Sinne ist auch das ingenieurgeologische Werk Stinys mit Fokus auf den Straßenbau zu werten: „Der Ingenieur muss die langsamen Bewegungen des Hochgebirgsbodens rechtzeitig erkennen und ihnen bei der Trassierung Rechnung tragen. Er muss sich davor hüten, durch unüberlegtes Anschneiden der Felsböschungen Massenbewegungen, Felsausbrüche und dergleichen auszulösen, vielmehr muss er eine möglichst „formschonende Bauweise“ anwenden; die Beobachtung der Lagerungsverhältnisse, besonders der Klüftung, die Erkenntnisse von der Anisotropie aller Felsgebilde, bewahren ihn vor den Fehlern früherer Jahrzehnte, unüberlegt und rücksichtslos vorzugehen; diese geologisch-technische Schau führt ihn vielmehr zu einem „naturnahen Bauen im Fels““[11].
Stiny legte die Grundlage für das Fach der Ingenieurgeologie. Die Fels- und Tunnelbauer konnten auf diesem Werk aufbauen. Mit der Großglocknerstraße hängt ebenso die Biographie des Bauingenieurs Leopold Müller, der als Begründer der Felsmechanik gilt, zusammen.
Der junge Leopold Müller konnte 1932 nach Abschluss seines Studiums keine Vollerwerbsstelle finden und bewarb sich in der Folge bei Joseph Stiny, der seit 1925 Professor für Geologie an der Technischen Hochschule Wien war, für eine Promotion. Leopold Müller war in der Folge von 1933 bis 1935 unter anderem als Bauleiter im Rahmen der Großglocknerstraße beim Mittertörltunnel beschäftigt.
Müller nimmt in seinem Werk „Der Felsbau“, das als Grundlagenwerk zur Felsmechanik und zum Tunnelbau gilt, deutlich auf Stinys technische Gesteinskunde Bezug und hebt die Bedeutung des Werks hervor. Müller widerspricht allerdings auch der landläufigen Meinung, die Linienführung im Tunnel sei eine „einfache“ Sache. Faktisch seien neben den geometrischen Zwängen nämlich die geologischen Zwänge schlagend, welche die bedachte Linienführung zu berücksichtigen hätte, um geologischen Problemzonen auszuweichen.
Müller unterstellt Ländern mit geringer Tunnelbauerfahrung die Wahl der geraden Linie, während aus der tunnelbautechnischen Erfahrung heraus gekrümmte Linienführungen mit engen Radien durch die Anpassung an die Geologie deutliche Vorteile bringen, wie dies beim Mittertörltunnel am Großglockner beabsichtigt war[12].
Ebenso befasst sich Müller in seinem Werk unter besonderem Verweis auf das Hochtortunnelportal am Großglockner, das in Block- und Quadermauerwerk ausgeführt ist, mit den ästhetischen Anforderungen an den Tunnelbau, die der Landschaft, der Geländeform, dem Kulturraum sowie dem Charakter des Verkehrsweges Rechnung tragen müssten[13].
Als Zivilingenieur plante Müller in Österreich und Deutschland, Afghanistan und in Japan. Das Vorhaben Müllers, die Felsmechanik wissenschaftlich zu begründen, mündete im „Salzburger Kreis“, der aus Geologen, Geophysikern, Berg- und Bauingenieuren bestand. Später resultierte daraus die „Internationale Gesellschaft für Felsmechanik“ 1962. Die konkrete Bezeichnung erfolgte interessanterweise in Korrespondenz und Abstimmung mit Karl von Terzaghi[14], der in Istanbul, Wien und Harvard Grundbau lehrte und weltweit als Begründer der modernen Bodenmechanik und folglich als einer der wichtigsten Bauingenieure des 20. Jahrhunderts gilt.
Ebenso am Bau der Großglocknerstraße beteiligt war der Bauingenieur Ladislaus von Rabcewicz, ohne den der moderne Tunnelbau nicht zu denken wäre. Rabcewicz war wie Müller an der wissenschaftlicher Begründung der Felsmechanik entscheidend beteiligt. Mit der Patentanmeldung für eine neue Tunnelbaumethode, die 1948 erfolgte, schuf Rabcewicz die Grundlage für die später folgende „Neue österreichische Tunnelbaumethode“.
Rabcewicz kam 1893 in Marburg an der Drau zur Welt, maturierte in Graz und studierte in Wien und in Graz Bauingenieurwesen. Nach dem Studium sollten Hochwasserschutzbauten und Bahntrassen zu seinem Tätigkeitsfeld werden, ehe er sich mit dem niederländisch-indischen Eisenbahnbau in Java und später in Anatolien und im Iran befasste. Von 1931 bis 1932 war Rabcewicz technischer Bevollmächtigter für den Bau der Großglockner Hochalpenstraße, ehe er in Dänemark und Persien im Infrastrukturbau tätig war.
Mit Josef Stiny, Leopold Müller und Ladislaus von Rabcewicz arbeiteten folglich gleich drei Wegbereiter der Ingenieurgeologie, des Fels- und Tunnelbaus an der Großglocknerstraße. Deren Werk trug nicht nur zum Projekterfolg am Großglockner bei, sondern schuf theoretische Grundlagen in den jeweiligen Disziplinen, die untrennbar mit der Großglocknerstraße zusammenhängend sind.
4. Straßenbau und Kunstbauten
Aus dem Trassenentwurf der Straße sowie aus den geologischen und geomorphologischen Gegebenheiten ergeben sich die Anforderungen an das Bauwerk Straße mit den entsprechenden Kunstbauten, welche erforderlich sind, um die Trasse im Raum zu entwickeln.
Kunstbauten sind grundsätzlich im Gegensatz zu den natürlichen Gegebenheiten jene künstlichen Bauwerke des Tiefbaues, welche natürliche topographische Hindernisse überwinden. Dazu gehören Brücken, Stützmauern, Überführungen, Unterführungen, Tunnel.
Historische Publikationen zum Straßenbau machen deutlich, dass Straßenbauprojekte in der Pionierphase des Straßenbaus immer im engen Zusammenhang mit der Landschaftsgestaltung stehen. Der Straßenbauingenieur Erwin Neumann hält in seinem Grundlagenwerk zum Straßenbau fest: „Zu den Regeln für eine gute Bildwirkung der Straße (…) gehört auch das harmonische Einfügen des Straßenkörpers in die umgebende Natur. Man muss davon ausgehen, dass der Bau einer Straße ein gewaltsamer Eingriff in das natürliche Gelände ist. (…) Die Schönheit der Landschaft ist Allgemeingut und muss erhalten bleiben“[15].
Zum Straßenbau im Gebirge gehört die Eingliederung des Straßenkörpers in den Hang. Einschnitt und Anschnitt bestehen in der Zielsetzung, möglichst wenig Erdreich anschaffen noch abschaffen zu müssen und stattdessen den Straßenkörper möglichst autark zu verwirklichen.
Daraus ergibt sich bei Neumann, dass der Straßenbau folglich immer ein komplexes mehrdimensionales Thema ist: „Beim Geländeanschnitt sprechen Gründe, die auf technischem und landschaftlichem Gebiet liegen, dafür, die Straßenachse aus dem Gelände herauszulegen. Mit abgeflachten Böschungen tritt dann die Straße nicht mehr als Fremdkörper im Gelände in Erscheinung. Auch der Massenausgleich im Querschnitt verlangt, dass die Mittelachse mehr talwärts liegt. Je mehr man diese aus dem Berg heraussetzt, desto geringer wird der Anschnitt und desto weniger die Bergseite angeritzt. Landschaftlich gesehen ist es immer richtiger, die Gebirgsstraße vom Berg fort auf Stützmauern zu setzen, als sie in den Berg hineinzudrücken“[16].
In diesem Sinne wirkte auch Franz Wallack beim Entwurf der Großglocknerstraße. Wallack führt die „Richtlinien für die technische Ausgestaltung von Alpenstraßen“ wie folgt an[17]:
- „Die Kehren werden so angelegt, dass sie von den größten Kraftfahrzeugen, ohne zurückstoßen zu müssen, durchfahren werden können“.
- „Die Wahl der durchschnittlichen Steigung einer Alpenstraße ist einerseits von dem zwischen bestimmten Punkten zu überwindenden Höhenunterschied, andererseits von der für die Straße erstrebten mittleren Fahrgeschwindigkeit abhängig. Die Wahl der mittleren Fahrgeschwindigkeit hat auf die Lange der durch sie beeinflussten Straßenentwicklung und auf die wirtschaftlich gerechtfertigte Grenze der Baukosten Rücksicht zu nehmen“.
- „Der Rohkörper der Straße wird durch Querschlitze, die mit Bruchsteinen ausgeschlichtet werden, entwässert. Für die Herstellung der Mauerwerkskörper wird nur dort Trockenmauerwerk verwendet, wo geeigneter lagerhafter Stein vorhanden ist und die Mauerwerkshöhen sich in bescheidenen Grenzen, etwa bis zu vier Meter, halten. In Mörtel verlegtes Bruchsteinmauerwerk findet weitestgehende Anwendung, während Betonmauerwerk möglichst auf die Gründung in schwierigen Baugruben beschränkt bleibt“.
- „Als Baustoff für die Brücken dient in erster Linie Naturstein und Eisenbeton, bei sehr großen Spannweiten auch Eisen. Die gleichen Baustoffe finden auch bei sonstigen Kunstbauten im Zuge der Straße Verwendung“.
- „Auf dem gut gefestigten, mitunter auch vorgewalzten oder sonst künstlich verdichteten Rohkörper der Straße liegt der Straßenunterbau, der aus einer etwa fünfundzwanzig Zentimeter starken Packlage aus kantigen Bruchsteinen besteht. Auf der Packlage liegt der Straßenoberbau in Form von wassergebundenen, gewalzten Schotterdecken mit oder ohne Fahrbahnbelägen der verschiedensten Art“.
- „Mit der Verringerung der Krümmungshalbmesser nimmt bei gleichbleibender Fahrgeschwindigkeit der Kraftfahrzeuge die Beanspruchung der Fahrbahnoberflache infolge Vergrößerung der Fliehkraft zu. Dieser verstärkten Beanspruchung wird durch Kleinsteinpflasterungen mit Fugenverguss oder durch Betondecken, besonders in den Kehren, Rechnung getragen“.
- „Der Ableitung der Niederschlagswässer von der Fahrbahn dienen in Bruchstein und Beton ausgeführte, etwa sechzig Zentimeter breite Spitzgräben. Der talseitigen Begrenzung der Fahrbahn dienen Randsicherungen in Form naturbelassener Wehrsteine, oft auch Geländer und Brüstungsmauern, je nach der Ausgesetztheit der Straße“.
- „Die Regel, dass keine Straßenböschung ungesichert bleiben darf, hat auch für den Gebirgsstraßenbau Geltung, da hier die Böschungen besonders stark den zerstörenden Witterungseinflüssen ausgesetzt sind. Humusierung und Besamung der Böschungen führt nur in Höhenlagen bis zu 1800 Meter zum Erfolg. In höher gelegenen Strecken werden die Böschungen zur Gänze mit an Ort und Stelle gewonnenen Rasenziegeln belegt oder mit Steinen rolliert“.
- „Nicht zu umgehende Bergvorsprünge und schwer zu übersteigende oder klimatisch ungünstig liegende Wasserscheiden werden in Tunnel durchfahren. Wo das Gestein auch nur im geringsten Maß zur Verwitterung neigt, werden die Tunnels zumindest in dem über der Fahrbahn liegenden Bereich ausgemauert, um eine Gefährdung der Fahrzeuginsassen durch herabfallende Steine zu verhindern“.
Wallack untermauert allerdings auch, dass der moderne Alpenstraßenverkehr Einrichtungen benötige, die zuvor nicht notwendig waren, nämlich Parkplätze, Straßenfernsprecher, Zapfsäulen sowie die Einrichtung eines Wasserdienstes. Grundsätzlich untermauert Wallack damit die Anforderungen an den alpinen Straßenbau jener Zeit.
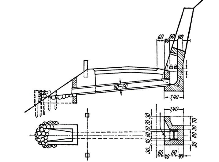
Beeindruckend war an der Großglocknerstraße die Ausführung der Regeldetails. Die Entwässerung erfolgte beim Anschnitt durch seitlich angeordnete Einfallschächte, wodurch die gusseisernen Roste eingespart werden konnten. Das Abwasser wird dabei unterhalb des Straßenbaukörpers talseitig abgeleitet, wobei halbkreisförmige flechtzäune die Erosion des Hanges bei Starkregen verhindern sollten[18].

Abbildung 5: Regeldetail Entwässerung, Schnitt und Draufsicht[19]
Mit der Geschichte der Hochalpenstraße hängt wesentlich auch die Regierung Dollfuß, die ab 1933 regierte, zusammen. Die Großglocknerstraße ist nicht unabhängig vom österreichischen Ständestaat zu denken[20]. Dieser Zusammenhang wird technisch und ästhetisch bewusst.
In Anlehnung an den Autobahnbau im nationalsozialistischen Deutschland, aber auch unter Bezugnahme auf den italienischen Faschismus, der geprägt durch den Futurismus im Automobil eine epochale zivilisatorische Entwicklung hineininterpretierte und die „Ästhetik der Maschine“ feierte[21], sollte auch der Bau der Hochalpenstraße vorangetrieben werden.
Aus historischer Sicht schwingt die vermeintliche „Eroberung“ der Alpen respektive der Natur durch den Menschen, den Ingenieurbau sowie die Maschine mit.
In diese Zeit fällt das nationalistische Kräftemessen der verschiedenen europäischen Nationen mit dem Ansinnen, die anderen in technischen Leistungen zu übertrumpfen. Der Bau der höchstgelegenen befestigten Passstraße in Österreich war ein beflügelndes Unterfangen für den gepeinigten Kleinstaat Österreich.
Damit der Straßenbau am Großglockner die ästhetischen Anforderungen jener Zeit erfüllen konnte, wurde der Architekt Clemens Holzmeister in das Projekt einbezogen. Holzmeister eröffnete mit Luis Trenker ein Architekturbüro in Bozen, war ab 1924 Professor an der Wiener Akademie der bildenden Künste und wusste es, mit der Politik jener Zeit ein Auskommen zu finden, ehe er 1938 Österreich in Richtung Türkei verließ. Die Architektursprache Holzmeisters ist von Monumentalität getrieben.
Der Monumentalität der österreichischen Alpen sollte folglich mit Straßenbau und begleitender Gestaltung etwas Gleichwertiges zur Seite gestellt werden.
Den Törlkopf, dem 2.455 m hohen Gipfel in den Hohen Tauern, ließ Wallack bewusst umfahren, um einen einzigartigen Blick in die Bergwelt zu gewähren. An jenem Punkt errichtete der Architekt Clemens Holzmeister, dessen Entwurf von Bundeskanzler Kurt Schuschnigg ausgewählt wurde, eine Gedenkstätte für die 13 Arbeiter und Ingenieure, die beim Bau der Straße ihr Leben lassen mussten. In der Folge wurden die Namen um 9 weitere ergänzt, die nach 1953 rund um die Großglocknerstraße ableben mussten.
Über dem Portal der Gedenkstätte steht in Bronzelettern: „Saxa terrae loquuntur gloriam tuam“ („Die Steine der Erde verkünden deinen Ruhm“). Mit dieser Gedenkstätte erhält die Großglocknerstraße folglich auch eine ästhetische sowie spirituelle Schlagseite.
5. Gegenwart
War es im historischen Verkehrswegebau das erklärte Ziel, den Verkehr im Alpenraum anzukurbeln, gelangt der inneralpine Verkehr heute, besonders in den Sommer- und Wintermonaten, an seine Grenzen. Der Ruf nach Verkehrsberuhigung, Sperrung der Alpenpässe, nach effizienten öffentlichen Zubringersystemen sowie nach so genannter „grüner“ Mobilität, die in der Theorie mit lokaler Wasserkraft versorgt werden soll, wird laut.
Vielleicht gewinnt der historische alpine Straßenbau mit seinem Hang zur Monumentalität unter dem Eindruck der sanften Mobilität neue Qualitäten. Dem nicht-motorisierten Verkehr kommt es bekanntlich mehr auf Informationsdichte einer Landschaft sowie auf die Gestaltung derselben an. Qualitäten, die die Großglocknerstraße, die mehr langgestreckte Architektur als ein Zweckbau ist, erfüllt.
Auf baulicher Seite gilt es, diese Zeugen der Vergangenheit zu erhalten, was im Ingenieurbau ohnehin die Zukunftsaufgabe schlechthin, zumindest in unseren Breitengraden, wird: Die Neutrassierung wird zur Seltenheit, der Bauerhalt der Straßenkörper, Stützbauwerke, Brücken und Tunnel zur Hauptaufgabe. Gerade in einer Gegenwart, in welcher Naturgefahren deutlich zunehmen und Bauwerke in exponierter Lage immer wieder an veränderte natürliche Gegebenheiten angepasst werden müssen, gehen die Herausforderungen nicht aus.

Literatur- und Quellenverzeichnis:
[1] www.grossglockner.at, Abruf am 16.02.2022
[2] Hans-Christian Lippmann: Sommerfrische als Symbol- und Erlebnisraum bürgerlichen Lebensstils – Zur gesellschaftlichen Konstruktion touristischer ländlicher Räume, Technische Universität Berlin, Berlin 2015, S. 179
[3] Franz Wallack: Die Großglockner-Hochalpenstraße – Die Geschichte ihres Baues, Wien 1949, S. 8 ff.
[4] Franz Wallack: Die Großglockner-Hochalpenstraße – Die Geschichte ihres Baues, Wien 1949, S. 10
[5] Franz Wallack: Die Großglockner-Hochalpenstraße – Die Geschichte ihres Baues, Wien 1949, S. 10
[6] Franz Wallack: Die Großglockner-Hochalpenstraße – Die Geschichte ihres Baues, Wien 1949, S. 4
[7] Siegfried Göllner: Dr. Franz Wallack, in: Die Stadt Salzburg im Nationalsozialismus. Biografische Recherchen zu NS-belasteten Straßennamen der Stadt Salzburg“, Salzburg 2021, S. 977 – 988
[8] Franz Wallack: Die Großglockner-Hochalpenstraße – Die Geschichte ihres Baues, Wien 1949, S. 27
[9] Franz Wallack: Die Großglockner-Hochalpenstraße – Die Geschichte ihres Baues, Wien 1949, S. 149
[10] Josef Stiny – Zur Geschichte der technischen Geologie, Mitteilungen der geologischen Gesellschaft Wien, 50. Band, Wien 1957, S. 410
[11] Josef Stiny – Zur Geschichte der technischen Geologie, Mitteilungen der geologischen Gesellschaft Wien, 50. Band, Wien 1957, S. 410 – 411
[12] Leopold Müller: Der Felsbau, Band 3: Tunnelbau, Wien 1978, S. 667
[13] Leopold Müller: Der Felsbau, Band 3: Tunnelbau, Wien 1978, S. 756 – 759
[14] International Society for Rock Mechanics (ISRM): A glimpse into the 55 years of the ISRM, 1962–2017, with a focus on France, Jubilé du Comité Français de Mécanique des Roches, Paris, 14 Septembre 2017, https://www.cfmr-roches.org/sites/default/files/manifestations/2017-2-CFMR-Jubile-Lamas.pdf, Abruf am 16.02.2022
[15] Erwin Neumann: Der neuzeitliche Straßenbau – Aufgaben und Technik, Berlin Heidelberg 1959, S. 225 – 228
[16] Erwin Neumann: Der neuzeitliche Straßenbau – Aufgaben und Technik, Berlin Heidelberg 1959, S. 225 – 228
[17] Franz Wallack: Die Großglockner-Hochalpenstraße – Die Geschichte ihres Baues, Wien 1949, S. 22 ff.
[18] Erwin Neumann: Der neuzeitliche Straßenbau – Aufgaben und Technik, Berlin Heidelberg 1959, S. 294
[19] Erwin Neumann: Der neuzeitliche Straßenbau – Aufgaben und Technik, Berlin Heidelberg 1959, S. 294
[20] Franz Schausberger: Mythos und Symbol – Die Großglockner Hochalpenstraße im autoritären Ständestaat, in: Die Großglockner Hochalpenstraße – Erbe und Auftrag, Johannes Hörl und Dietmar Schöndofer (Hrsg.), Wien 2015, S. 1 ff.
[21] Daniela Zenone: Das Automobil im italienischen Futurismus und Faschismus: seine ästhetische und politische Bedeutung, Wissenschaftszentrum Berlin für Sozialforschung, Berlin 2002, S. 3 ff.


Hinterlasse einen Kommentar